Local

Blair County-based furniture store unveils plans for first Centre County location

Traffic travels along Shiloh Road on Wednesday, June 26, 2024.
Traffic travels along Shiloh Road on Wednesday, June 26, 2024. adrey@centredaily.com
Key Takeaways
Key Takeaways

AI-generated summary reviewed by our newsroom.

Read our AI Policy.


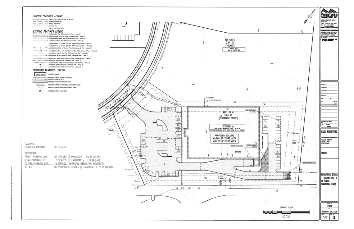
  • Park Home Furniture proposes 40,268-square-foot showroom Shiloh Commercial Park.
  • Sketch plan shows 65 spaces now, plus a 15-space lot to add later; reduction possible.
  • Final plans due June; construction expected to start in fall after approvals.

A Blair County-based furniture store is eyeing its first Centre County location, according to sketch plans that were reviewed at Tuesday’s College Township Planning Commission meeting.

The plans were for a 40,268-square-foot Park Home Furniture store, and were presented by PennTerra engineer Mark Torretti. Currently, the local chain has locations in Johnstown and Altoona, but is looking to construct a new showroom on a 3.63-acre lot near the intersection of Shiloh and East Trout roads in the Shiloh Commercial Park.

The lot is just one of eight total lots in the commercial park, which is owned by Ed Maxwell, Maxwell Truck & Equipment LLC’s owner.

Upon future final land development plan approval, the store will become the second business in the park, following the Home2Suites by Hilton that broke ground in November 2024 and is expected to be finished in April. The furniture store’s construction will mark the start of the second phase of developments in the park — the first phase was marked by the hotel.

According to the sketch plans, a 460-square-foot delivery area and loading dock will be also constructed at the store’s southeast-facing back corner, and access to the site will be from a yet-to-be-built portion of East Trout Road. The site’s overall layout and access points are designed for easy semi truck access.

“It’s not going to be a big warehouse that they’re going to be having a lot of trucks shipping furniture out at,” Torretti said. “There will be deliveries to stock the showroom maybe once every a week or so, but that’s about it.”

While the township’s code mandates that 80 parking spaces be constructed with the store, the sketch plan shows only 65 parking spaces, along with an additional 15-car parking lot behind the store to be built at a to-be-determined point in time.

The parking situation could change in the future though, as Torretti noted Tuesday that Park Home’s other two stores only have 40 parking spaces each. Impending zoning changes for the Dale Summit area could see the parking requirement lowered — and if not, the developer may look to submit a parking reduction request.

Public utilities will come to the building from East Trout Road, and an off-site stormwater basin will be constructed. Additionally, a sidewalk spanning from the furniture store to the property line of UEC Theatres 12 will also be built.

Because the plans presented Tuesday were only sketch plans, no action was taken. Torretti expects a final land development plan submission for the store to arrive in June, following the completion of some final subdivision requests in April, and the finalization of a land swap between the store and the neighboring Christ Community Church Property.

Following the final plans’ approval, Torretti expects construction on the store to begin in the fall.

“[The plans] look very good, very thorough — it’s a good start,” planning commission member Peggy Ekdahl said Tuesday.

Sketch plans for the proposed Park Home Furniture in College Township, provided by PennTerra Engineering and included in the College Township Planning Commission’s agenda.
Sketch plans for the proposed Park Home Furniture in College Township, provided by PennTerra Engineering and included in the College Township Planning Commission’s agenda. PennTerra Engineering PennTerra Engineering
Get unlimited digital access
#ReadLocal

Try 1 month for $1

CLAIM OFFER